Эскизный проект- эскизное проектирование
Мы проектируем стильные коттеджи!
Для реализации вашего проекта у нас есть все. 4 опытных архитектора, которые находятся прямо в офисе готовы воплотить любые ваши идеи, мечты или просто подсказать то о чем Вы даже не догадывались, что это возможно.
Для этих целей у нас современные лицензионные программы для проектирования.
Придумываем, создаем, творим, генерируем новые идеи, концепции.
От назначения загородного дома зависит очень многое – поэтому прежде, чем приступать непосредственно к выбору или созданию проекта, следует разобраться, как дом будет использоваться.В целом назначение загородного дома может быть два: это, условно говоря, дача – то есть, дом для сезонного, временного проживания; либо это дом, в котором вы собираетесь проживать постоянно, круглый год.
Для дачи в качестве материала, чаще всего, применяется дерево. В российском климате это вполне оправданное решение. Деревянный дом нетрудно при необходимости протопить зимой, а его конструкции и отделка совершенно не пострадают от морозов в ваше отсутствие.
Если речь идёт о доме для постоянного проживания, то выбор материала строительства и типа конструкции существенно расширяется. Конечно, можно использовать и дерево – хотя бы потому, что оно экологично. К тому же, такой дом относительно недорого стоит, и весьма
быстро строится. Но деревянные дома предполагают некоторые ограничения в дизайне.
Стоимость Эскизного проектирования.
Эскизный проект упрощенный
Состав пакета:
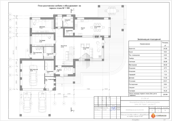
- Общие данные
- Планы этажей
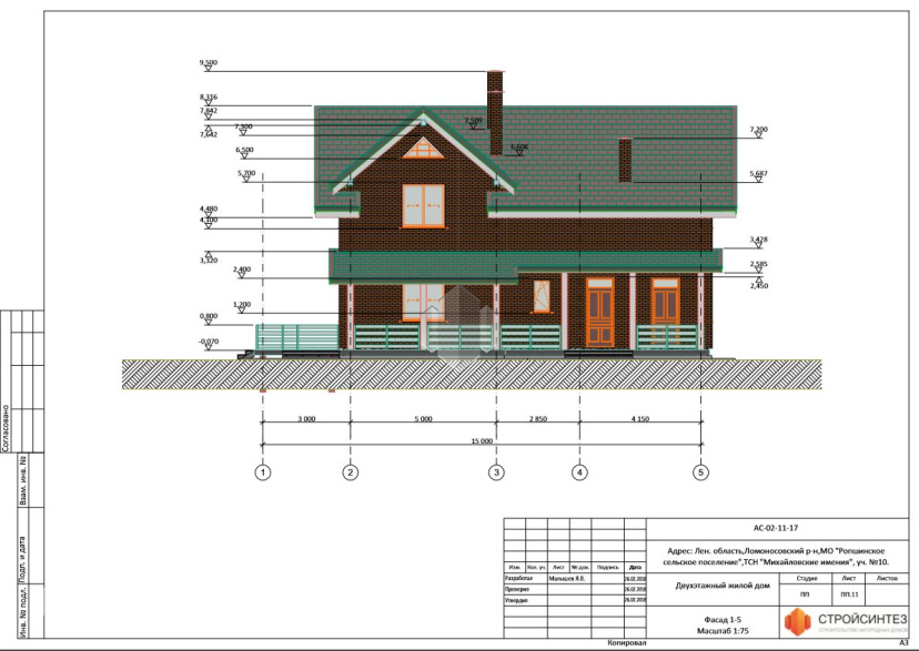
- Фасады
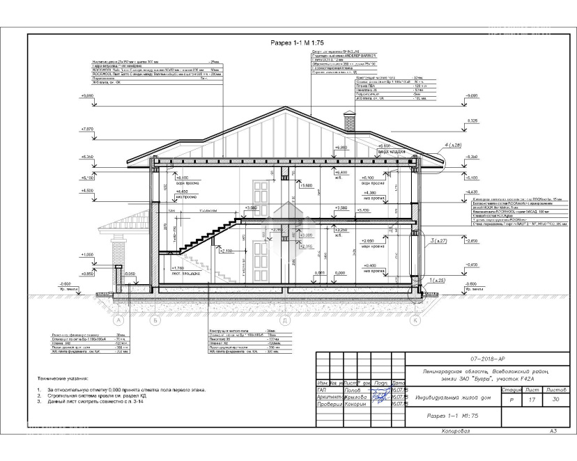
- Разрезы - 2 шт.
- Схема привязки дома на участке
- 3D-виды дома - черно-белые
от 1400 руб.
1000 руб. м.кв.
1000 руб. м.кв.
Эскизный проект
Состав пакета:
- Общие данные
- Планы этажей
- Фасады
- Разрезы - 2 шт.
- Схема привязки дома на участке
- 3D-виды дома - цветные
от 1700 руб.
1300 руб. м.кв.
1300 руб. м.кв.
Эскизный проект 3Д
Состав пакета:
- Общие данные
- Планы этажей
- Фасады
- Разрезы - 2 шт.
- Схема привязки дома на участке
- 3D-виды дома - цветные
- Фотореалистичная визуализация дома
- Видео пролет вокруг дома full hd
от 2300 руб.
1800 руб. м.кв.
1800 руб. м.кв.
Состав Эскизного проекта:
Вопросы и ответы
Для начала рабочего проектирования, в первую очередь, необходим согласованный заказчиком эскизный проект, техническое задание на разработку рабочего проекта, геологические изыскания.
Конечно! Для этого нам нужно кадастровый план участка, геодезический план с подеревкой и план вашего дома. Если у вас нет каких то документов, то мы можем их разработать. Приглашаем Вас в офис, или можете обратиться дистанционно.
Рабочий проект, в первую очередь, нужен строительной организации для подсчёта подробной сметы и для строительства данного проекта.
Да у нас отработано удалённое взаимодействие с заказчиком посредством интернета (skype, e-mail, whatsapp, viber и т.п.) Весь процесс работы может происходить удалённо, без необходимости посещения офиса. Мы ценим Ваше время.
Да конечно, ведь эскизный проект это совместное творчество архитектора и заказчика. Мы учитываем все Ваши пожелания.
Срок изготовления эскизного проекта в основном зависит от двух факторов. От времени согласования с заказчиком этапов работ, и от сложности проекта. Если заказчик оперативно согласовывает этапы и вносит корректировки, то обычно это занимает не более 1-1.5 месяцев.
Техническое задание - это документ, в котором фиксируются все пожелания заказчика по проекту, и на его основании разрабатывается эскизный проект.
Эскизный проект - это первая стадия разработки проекта, в которой учитываются все пожелания заказчика по объёмно-планировочным решениям. Иными словами, эскизный проект это то, как будет выглядеть Ваш будущий дом.
Статьи на тему
Здоровая экология частного дома
Какая технология строительства является на сегодняшний день наиболее экологичной? Этот вопрос сегодня волнует большую часть заказчиков. Люди хотят получить однозначный ответ, однако его не существует.
Современное проектирование коттеджей.
Современные технологии позволяют увидеть будущий дом задолго до его постройки – создать дизайн-проект коттеджа. 3D-визуализация
Вопросы и ответы
Для начала рабочего проектирования, в первую очередь, необходим согласованный заказчиком эскизный проект, техническое задание на разработку рабочего проекта, геологические изыскания.
Конечно! Для этого нам нужно кадастровый план участка, геодезический план с подеревкой и план вашего дома. Если у вас нет каких то документов, то мы можем их разработать. Приглашаем Вас в офис, или можете обратиться дистанционно.
Рабочий проект, в первую очередь, нужен строительной организации для подсчёта подробной сметы и для строительства данного проекта.
Да у нас отработано удалённое взаимодействие с заказчиком посредством интернета (skype, e-mail, whatsapp, viber и т.п.) Весь процесс работы может происходить удалённо, без необходимости посещения офиса. Мы ценим Ваше время.
Да конечно, ведь эскизный проект это совместное творчество архитектора и заказчика. Мы учитываем все Ваши пожелания.
Срок изготовления эскизного проекта в основном зависит от двух факторов. От времени согласования с заказчиком этапов работ, и от сложности проекта. Если заказчик оперативно согласовывает этапы и вносит корректировки, то обычно это занимает не более 1-1.5 месяцев.
Техническое задание - это документ, в котором фиксируются все пожелания заказчика по проекту, и на его основании разрабатывается эскизный проект.
Эскизный проект - это первая стадия разработки проекта, в которой учитываются все пожелания заказчика по объёмно-планировочным решениям. Иными словами, эскизный проект это то, как будет выглядеть Ваш будущий дом.
Статьи на тему
Здоровая экология частного дома
Какая технология строительства является на сегодняшний день наиболее экологичной? Этот вопрос сегодня волнует большую часть заказчиков. Люди хотят получить однозначный ответ, однако его не существует.
Современное проектирование коттеджей.
Современные технологии позволяют увидеть будущий дом задолго до его постройки – создать дизайн-проект коттеджа. 3D-визуализация