Индивидуальное проектирование домов и коттеджей

 
Итак, вы приняли решение – строить собственный загородный дом, коттедж, дачу, виллу или еще что-то. Задача сложная и комплексная. А как известно, любая сложная задача становится проще, если разбить её на некие этапы.

Индивидуальный проект 2021
Без сомнения, первый этап строительства дома – это подготовительный этап, а именно консультация с архитектором. Именно об этой стадии мы сейчас подробно поговорим, так как это основополагающий этап, от которого прямо зависит успех всех дальнейших шагов, и отнестись к нему нужно с максимальным вниманием и ответственностью.
Стоимость индивидуального проектирования
Архитектурный проект

Эскизный проект

1200 руб./м2
Строительная документация: КЖ-фундамент, КР коробка, кровля, фасад

Для домов от 500 м2

1500 руб./м2

Для домов от 250 до 500 м2

1700 руб./м2

Для домов до 250 м2

2000 руб./м2
Инженерные сети и отделка

Дизайн проект

2000 руб./м2

ОВ - отопление, вентиляция и кондиционирование воздуха

250 руб./м2

ВК - водоснабжение и водоотведение

250 руб./м2

ЭОМ - система электроосвещения и силового оборудования

250 руб./м2
Прочее

Раздел КЖ - плита/лента 30 000 руб. +

300 руб./м2

Топографическая съемка местности

2500 руб./сотка

Геологическое исследование (2 скважины по 8 м)

40000 руб.
Видео проектов
СМОТРЕТЬ ВСЕ
Преимущества индивидуального проектирования
работа с конкретным участком
При индивидуальном проектировании архитектор и конструктор учитывают данные геологических и геодезических исследований — это отражается и на конструктивных решениях по фундаментам и на генеральном плане.
соотвествие вашему дому мечты
На то проект и называется ИНДИВИДУАЛЬНЫМ, что архитектор учитывает все пожелания заказчика, касающиеся будущей постройки.
Максимальная функциональность
В процессе проектирования собственного дома появляется отличная возможность продумать в нем все досконально.
Эксклюзивность
Логично, что проект оригинален и такого же дома не окажется у соседа на участке.
Получите консультацию бесплатно

Нажимая на кнопку, вы даете согласие на обработку персональных данных и соглашаетесь с политикой конфиденциальности

Смотреть данное видео на других платформах

Индивидуальный проект дома

Индивидуальное проектирование (низ страницы) 1 Индивидуальное проектирование (низ страницы) 1

У индивидуального проекта много существенных преимуществ. При разработке индивидуального проекта архитектор сможет учесть все ваши потребности и пожелания, в итоге вы получите действительно уникальный дизайн дома, которым можно гордиться.

Профессиональный архитектор при разработке проекта ведёт себя подобно семейному врачу – он узнаёт максимум подробностей о жизни заказчика, о его семье, привычках и увлечениях. Именно такое погружение в потребности клиента позволяет добиться идеального результата.

К тому же, как уже говорилось выше, при строительстве дома очень многое зависит от участка, каждый из которых уникален. В полной мере учесть все нюансы, используя типовой проект, возможно далеко не всегда. Но, конечно, разработка индивидуального проекта занимает довольно много времени и стоит немалых денег. Стоит ли оно того – Однозначно да! Многие заказчики это понимают только в конце стройки, когда уже потрачено много денежных и временных ресурсов или получен не ожидаемый результат.

Индивидуальное проектирование (низ страницы) 4 Индивидуальное проектирование (низ страницы) 4
Вопросы и ответы

Делаете ли Вы модели домов в трехмерном изображении? Как можно посмотреть коттедж во всех ракурсах?

У нас современные лицензионные программы для 3D проектирования. Клиенту мы можем предоставить БИМ модель, и вы можете походить по дому в 3D очках, посмотреть на компьютере и на любых гаджетах.
Александр
Главный архитектор
06-06-2018

Какие данные необходимы для начала рабочего проектирования?

Для начала рабочего проектирования, в первую очередь, необходим согласованный заказчиком эскизный проект, техническое задание на разработку рабочего проекта, геологические изыскания.
Александр
Главный архитектор
11-07-2019

Вы можете разработать проект по геологии соседского участка?

Мы в обязательном порядке производим геологические изыскание для всех наших проектируемых объектов т.к. на основание этой информации конструктор производит расчёт фундамента дома. Мы несём гарантию и ответственность за все принятые нами технические решения.
Грачев Михаил
Ведущий архитектор
18-07-2018

Можно ли внести у Вас изменения в готовый ( приобретенный ) проект?

Да. Для этого у нас есть все специалисты. Мы можем внести изменения в проект, доработать, выдать необходимые листы проекта, узлы, спецификации. Стоимость данных работ будет зависеть от количества затраченного времени. В среднем 1 час работы архитектора или технолога стоит от 800р.
Иванов Владимир
Учредитель, основатель компании с 2005 года
05-07-2018

Здравствуйте. Мне необходимо доработать типовой проект под пожелания нашей семьи. Осуществляете ли Вы такие работы?

Петр, добрый день. Вышлите нам на почту 9810311@gmail.com Ваш типовой проект. Приложите к письму Ваши пожелания и схему участка. Наш архитектор ознакомится и сможет с Вами связаться.
Иванов Владимир
Учредитель, основатель компании с 2005 года
13-06-2018

Где лучше заказывать рабочий проект дома?

Рабочий проект однозначно надо заказывать в той организации, которая будет заниматься строительством этого дома, что бы ответственность и гарантию проектирование и строительство несла одна организация.
Найден Вадим
Главный инженер
14-06-2018

Зачем нужен рабочий проект?

Рабочий проект, в первую очередь, нужен строительной организации для подсчёта подробной сметы и для строительства данного проекта.
Иванов Владимир
Учредитель, основатель компании с 2005 года
24-05-2019
СМОТРЕТЬ ВСЕ

Статьи на тему индивидуальное проектирования

Эскизный проект

От назначения загородного дома зависит очень многое – поэтому прежде, чем приступать непосредственно к выбору или созданию проекта, следует разобраться, как дом будет использоваться. 

   В целом назначение загородного дома может быть два: это, условно говоря, дача – то есть,  дом для сезонного, временного проживания; либо это дом, в котором вы собираетесь проживать постоянно, круглый год. 

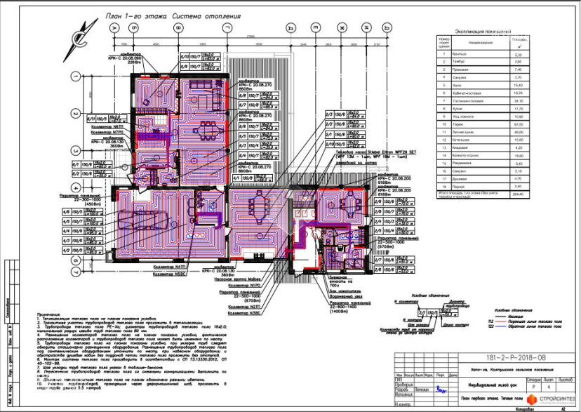
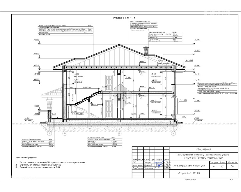
Рабочий проект

Рабочий проект выполняется после согласования эскизного проекта. Это 2-ой этап проектирования. В него входит:

АР - архетектурные решения

КЖ -конструкции железобетонные

КД - конструкции деревянные

Инженерные разделы

  • Проект ОВ -отопление, вентиляция
  • Проект ЭО - электрика, молниезащита, контур заземления
  • Проект СС - слаботочные сети
  • Наружные сети
  • Проект ВК - водопровод, канализация, водоподготовка

Дизайн интерьеров
Ландшафный дизайн

Как сделать участок удобным и приятным для отдыха и работы? Какие правила необходимо соблюдать, чтобы не превратить его в хаотичный набор не связанных или неудачно скомпонованных между собой элементов?