Загородный дом в стиле Барнхаус 170м2






проектные
данные
данные
- СтатусВ работе
- Площадь 1 этажа87
- Гараж/НавесДа
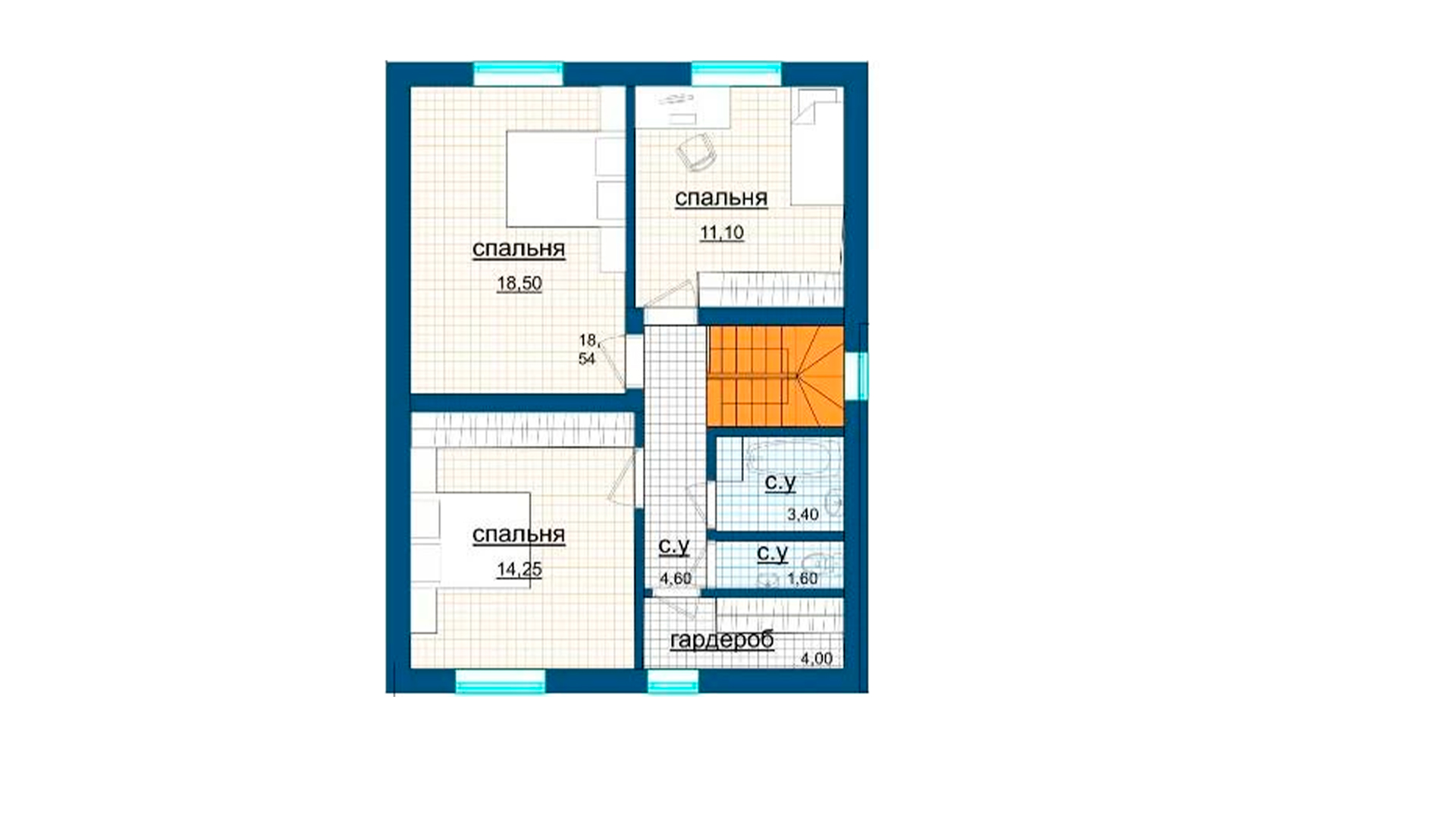
- Количество спален4
- Количество санузлов2
- ПрочееГараж, терраса
- ФундаментМонолитная плита с ростверком
- СтеныКирпич
- ПерекрытиеМонолит
- КровляДвускатная фальцевая
- ФасадДекоративная штукатурка
ОРИЕНТИРОВОЧНАЯ СТОИМОСТЬ
-
Стоимость
строительсваСтоимость строительсва
По запросу
Изменить
Планировку
Изменить
Планировку
Хочу себе
такой же
дом!
ОСТАВИТЬ ЗАЯВКУ
такой же
дом!
Видео о объекте
Рассчитайте стоимость строительства загородного дома
Рассчитайте стоимость проектирования загородного дома
проектные
данные
данные
- СтатусВ работе
- Площадь 1 этажа87
- Гараж/НавесДа
- Количество спален4
- Количество санузлов2
- ПрочееГараж, терраса
- ФундаментМонолитная плита с ростверком
- СтеныКирпич
- ПерекрытиеМонолит
- КровляДвускатная фальцевая
- ФасадДекоративная штукатурка
ОРИЕНТИРОВОЧНАЯ СТОИМОСТЬ
-
Стоимость
строительсваСтоимость строительсва
По запросу -
Стоимость
проектированияСтоимость проектирования
Заявка на расчет
Вопросы и ответы
Мансарда поможет снизить затраты, если она будет заменять второй этаж. Также дом кубической формы, где нет выступов или балконов сэкономит бюджет. Еще можно сделать минимум внутренних перегородок, при этом добавив побольше окон.
Надо рассчитывать исходя из конкретного случая. Всё зависит от геологии, рельефа, возможности подъезда и ваших пожеланий. От того, как вы это потом хотите видеть.
К подготовительным работам относятся:
- Заказ проекта дома
- Составление сметы производственных работ
- Очистка участка от растительности и снятия грунтового покрытия на 10-15 см.
- Разметить участок всей предоставленной площади
- Определить наличие грунтовых вод, возможность их вывода или осушения
- При помощи техники выполнить утрамбовку грунта
- Замерить возможную глубину промерзания.
Узнать стоимость вашего проекта
×
Заказать звонок
Оставьте свои контактные данные и мы свяжемся с вами в ближайшее время
Спасибо!
Ваша заявка успешно отправлена.
Мы свяжемся с вами в ближайшее время.