Райт КВ-293




проектные
данные
данные
- СтатусЗавершен
- СтильРайт
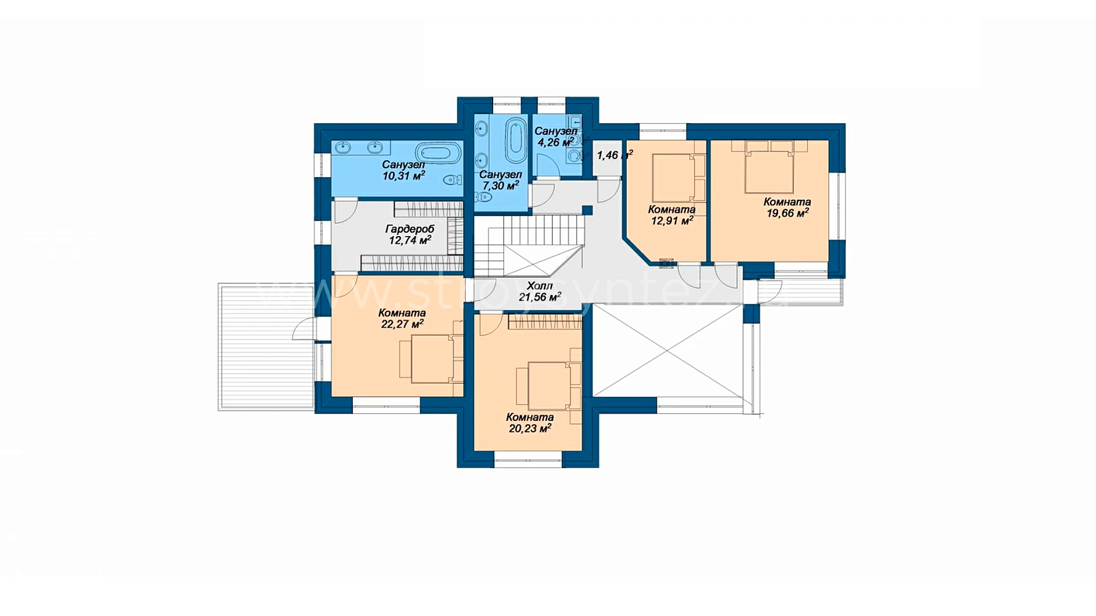
- Площадь 1 этажа160
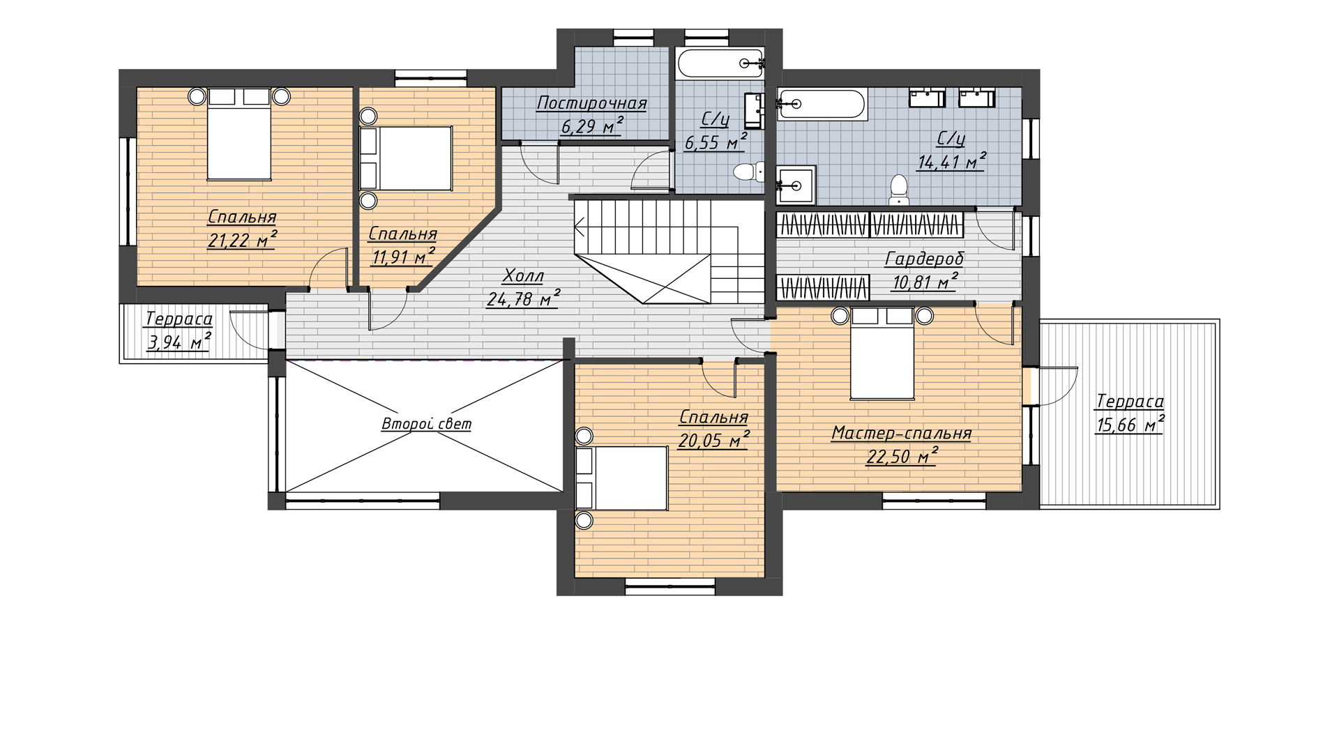
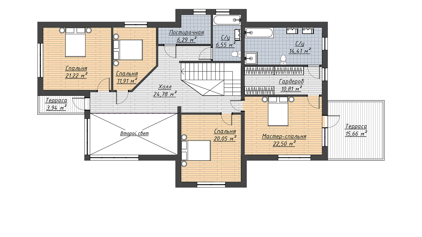
- Площадь 2 этажа133
- Количество спален4
- Количество санузлов3
- Количество балконов2
- ПрочееТренажерный зал, сауна и веранда
- ФундаментМонолитная плита
- СтеныКирпич
- ПерекрытиеМонолитное
- КровляКерамическая черепица
- ФасадКирпич ручной формовки, планкен
ОРИЕНТИРОВОЧНАЯ СТОИМОСТЬ
-
Стоимость
строительсваСтоимость строительсва
По запросу
Изменить
Планировку
Изменить
Планировку
Хочу себе
такой же
дом!
ОСТАВИТЬ ЗАЯВКУ
такой же
дом!
Рассчитайте стоимость строительства загородного дома
Рассчитайте стоимость проектирования загородного дома
проектные
данные
данные
- СтатусЗавершен
- СтильРайт
- Площадь 1 этажа160
- Площадь 2 этажа133
- Количество спален4
- Количество санузлов3
- Количество балконов2
- ПрочееТренажерный зал, сауна и веранда
- ФундаментМонолитная плита
- СтеныКирпич
- ПерекрытиеМонолитное
- КровляКерамическая черепица
- ФасадКирпич ручной формовки, планкен
ОРИЕНТИРОВОЧНАЯ СТОИМОСТЬ
-
Стоимость
строительсваСтоимость строительсва
По запросу -
Стоимость
проектированияСтоимость проектирования
Заявка на расчет
Вопросы и ответы
- Договор для согласования проектирования подписывается на встречи, перед тем, как познакомится с архитектором.
- После согласования сметы подписывается договор на строительство.
Срок строительства дома в стиле Райт в среднем составляет от 8 до 12 месяцев и зависит от площади, архитектурной сложности и выбранной комплектации.
Ориентировочные сроки по этапам:
холодный контур — от 3 месяцев
тёплый контур — от 6 месяцев
строительство под ключ — от 9–12 месяцев
Точный срок определяется после разработки проекта и составления детального графика работ с учётом особенностей участка и всех архитектурных решений.
Да, для этого нужно выехать на место, произвести обследование, сделать расчеты и согласовать с Вами смету.
Похожие проекты
Узнать стоимость вашего проекта
×
Заказать звонок
Оставьте свои контактные данные и мы свяжемся с вами в ближайшее время
Спасибо!
Ваша заявка успешно отправлена.
Мы свяжемся с вами в ближайшее время.