Фахверк КС-307



данные
- СтатусПроект
- СтильФахверк
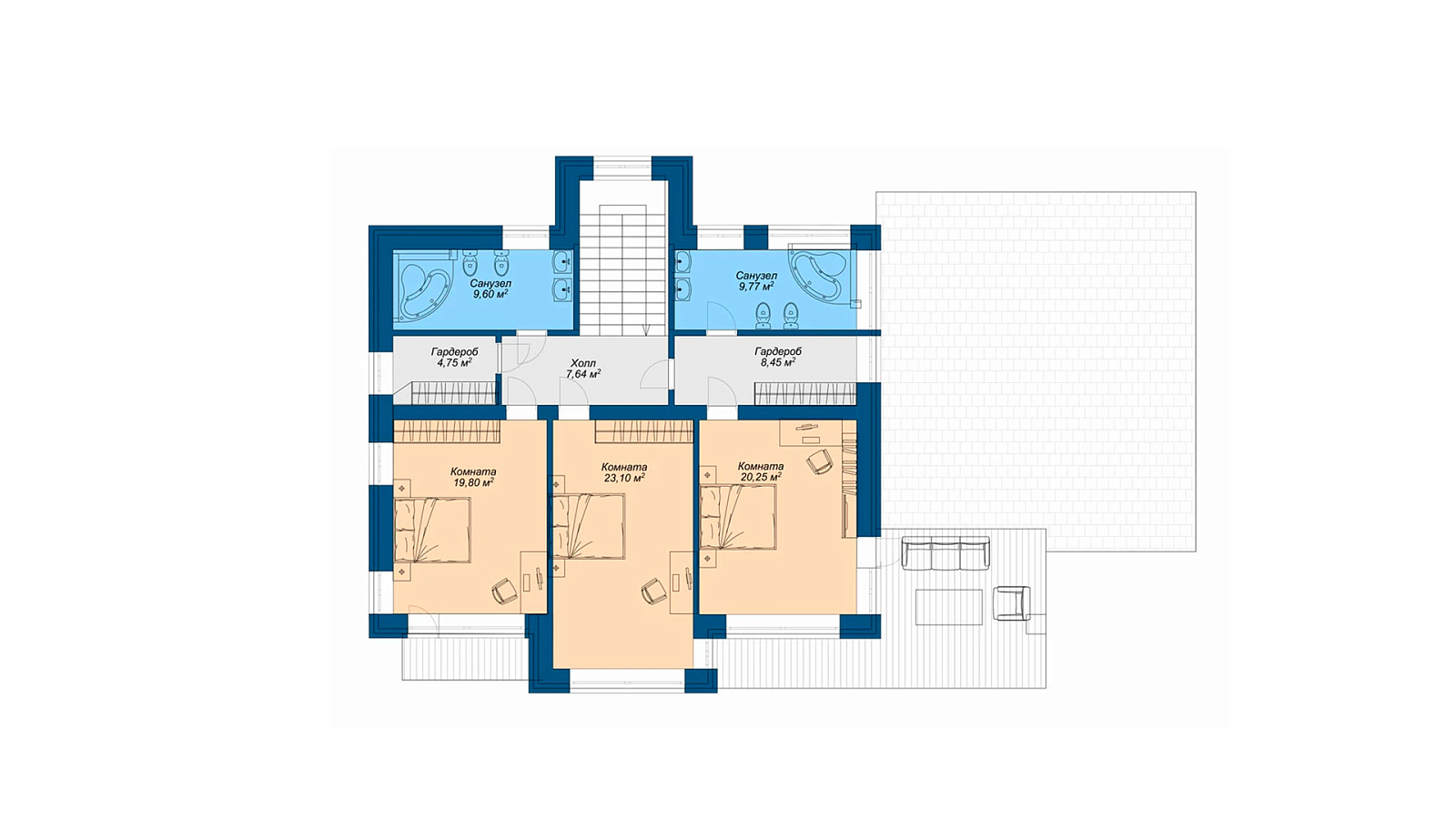
- Площадь 1 этажа204
- Площадь 2 этажа103
- Гараж/НавесДа
- Количество спален3
- Количество санузлов3
- Количество балконов1
- ПрочееГараж, сауна и терраса
- ФундаментМонолитная ж/б плита с ростверком
- СтеныПоризованный кирпич 2.1NF
- ПерекрытиеМонолитное
- КровляДвускатная
- ФасадДекоративная штукатурка и планкен
-
Стоимость
строительсваСтоимость строительсва
По запросу
Планировку
такой же
дом!
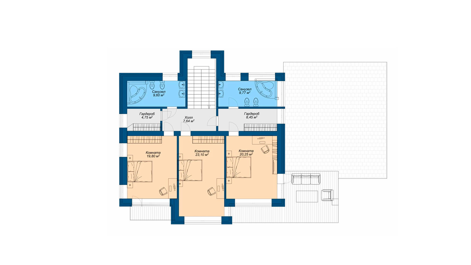
данные
- СтатусПроект
- СтильФахверк
- Площадь 1 этажа204
- Площадь 2 этажа103
- Гараж/НавесДа
- Количество спален3
- Количество санузлов3
- Количество балконов1
- ПрочееГараж, сауна и терраса
- ФундаментМонолитная ж/б плита с ростверком
- СтеныПоризованный кирпич 2.1NF
- ПерекрытиеМонолитное
- КровляДвускатная
- ФасадДекоративная штукатурка и планкен
-
Стоимость
строительсваСтоимость строительсва
По запросу -
Стоимость
проектированияСтоимость проектирования
Вопросы и ответы
Построить одноэтажный дом в стиле Райт площадью около 120 м² возможно, но важно учитывать особенности этого направления.
Стиль Райт предполагает сложную композицию, горизонтальные линии, выносные элементы и разноуровневую архитектуру. Именно перепады уровней формируют характерный внешний вид таких домов.
В компактном одноэтажном доме это реализуемо, но:
— усложняет конструктивные решения
— требует детальной архитектурной проработки
Часто применяется адаптированный вариант стиля Райт — с сохранением внешней эстетики и более рациональной конструкцией.
Касательно проектирования, аванс в 70% вносится в течение 5 рабочих дней. После сдачи проекта заказчик оплачивает остаток. Касательно строительства, этапы в смете оплачиваются отдельно. Размер платежей может быть разный, но общая сумма не выходит за пределы сметы.
Узнать стоимость вашего проекта
Заказать звонок
Оставьте свои контактные данные и мы свяжемся с вами в ближайшее время
Спасибо!
Ваша заявка успешно отправлена.
Мы свяжемся с вами в ближайшее время.