Барнхаус КС-250









данные
- СтатусЗавершен
- СтильБарнхаус
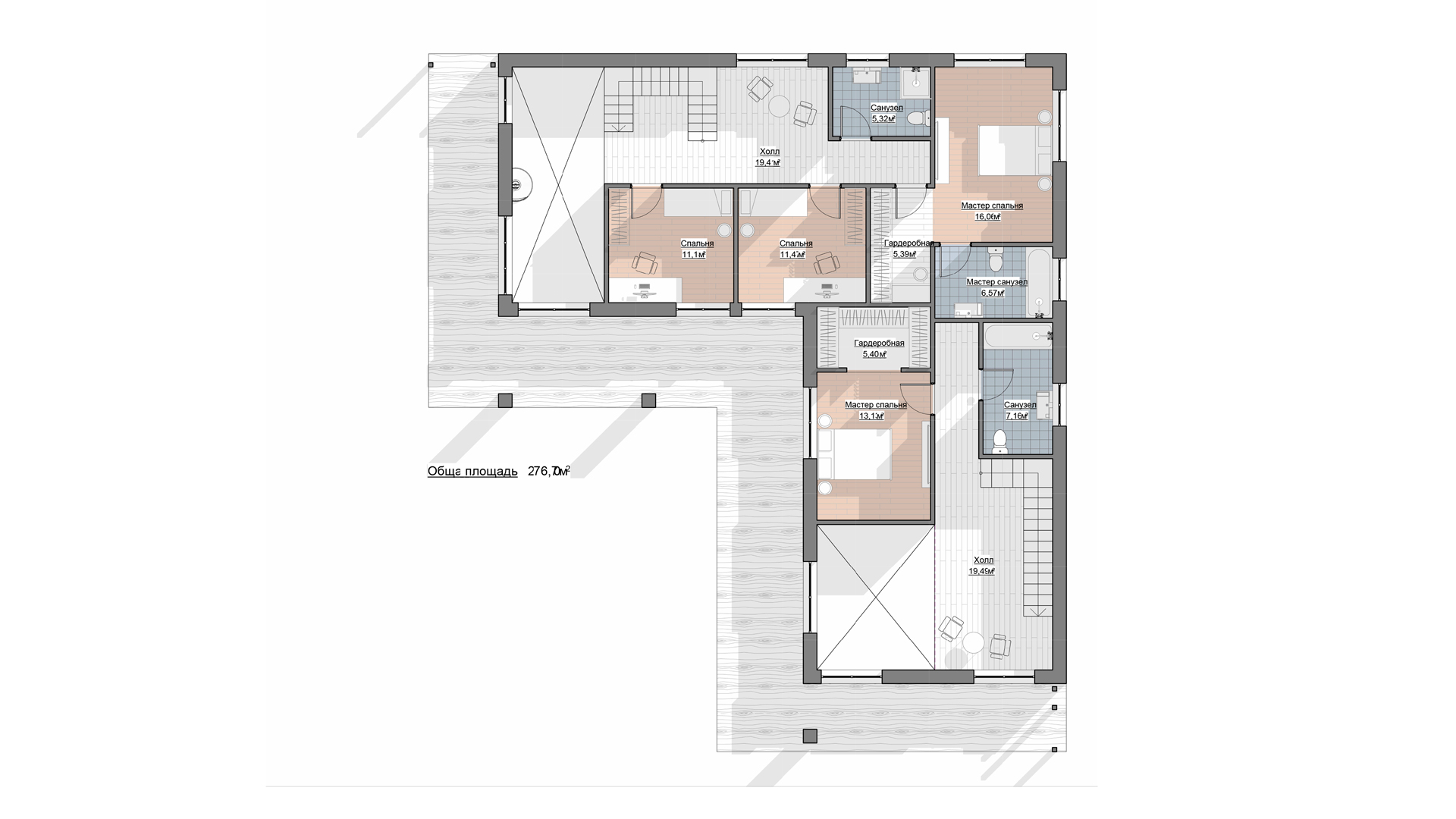
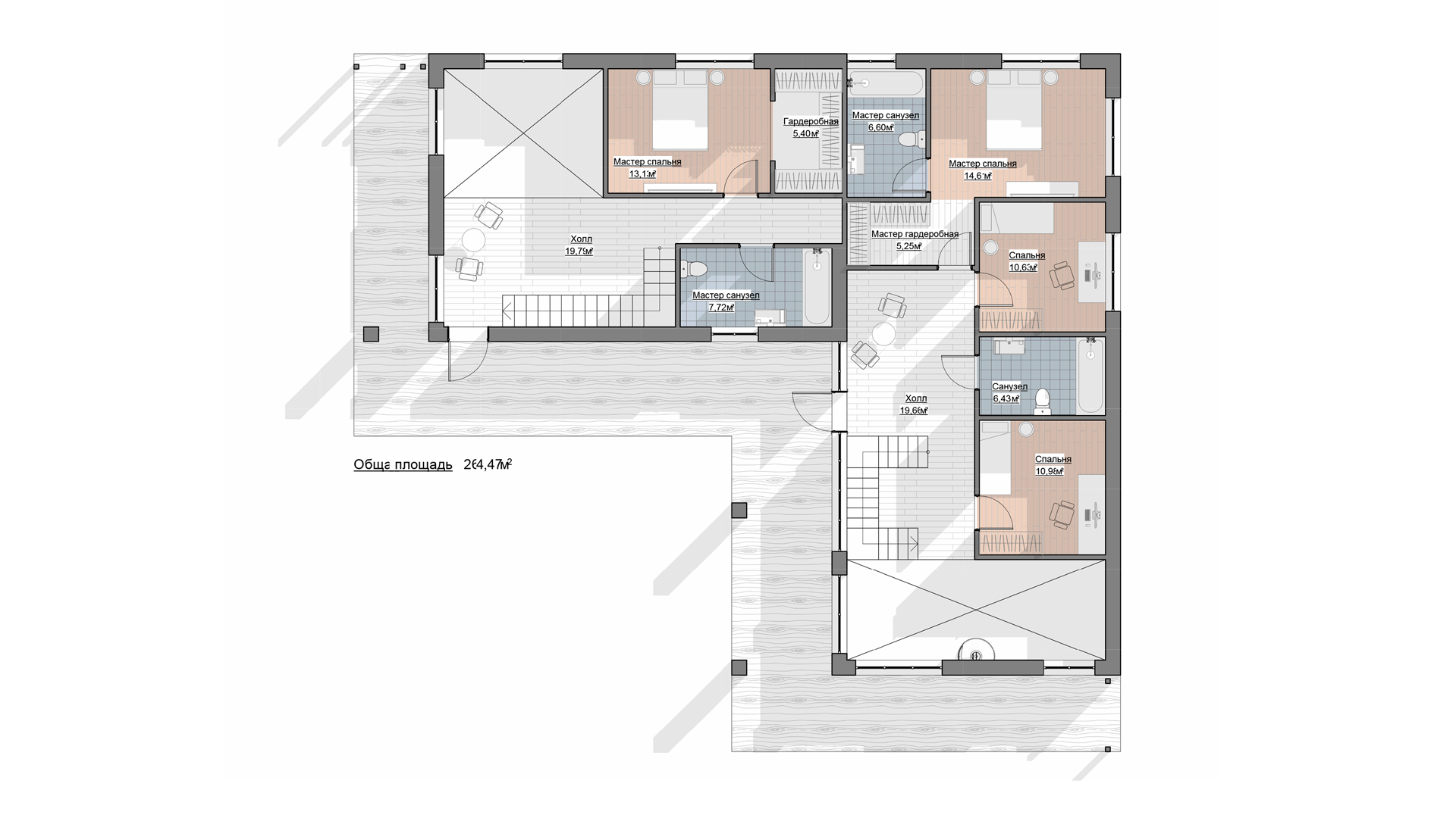
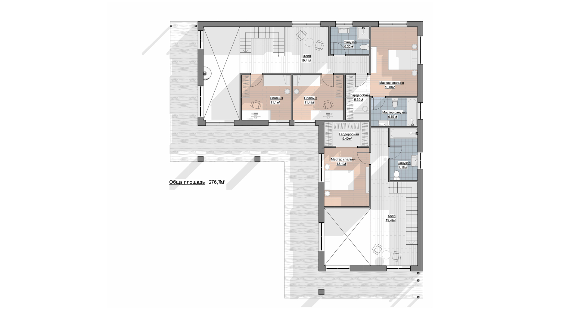
- Площадь 1 этажа145
- Количество спален3
- Количество санузлов3
- Количество балконов1
- ФундаментМонолитная плита
- СтеныПоризованный камень 2.1NF
- ПерекрытиеМонолитное
- КровляДвускатная с покрытием цементно-песчаной черепицы
- ФасадМеталлические панели + планкен
-
Стоимость
строительсваСтоимость строительсва
По запросу
Планировку
такой же
дом!
До-после
данные
- СтатусЗавершен
- СтильБарнхаус
- Площадь 1 этажа145
- Количество спален3
- Количество санузлов3
- Количество балконов1
- ФундаментМонолитная плита
- СтеныПоризованный камень 2.1NF
- ПерекрытиеМонолитное
- КровляДвускатная с покрытием цементно-песчаной черепицы
- ФасадМеталлические панели + планкен
-
Стоимость
строительсваСтоимость строительсва
По запросу -
Стоимость
проектированияСтоимость проектирования
Вопросы и ответы
Для этого доступно любое покрытие кровли. По виду можно использовать скатную или плоскую, которая эксплуатируется.
Она делается для отвода воды, стекающей с крыши, а также для защиты от поверхностных вод. Ширина отмостки – минимум 70 см. Кроме того, она должна быть на 20 см шире карниза, иначе стекающая с крыши вода размоет грунт и застоится под домом.
Если грунты просадочные, то ширина отмостки должна составлять как минимум 1 м, и она должна быть на 30 см шире фундаментных пазух.
Отмостка делается с уклоном 1:5. В ее составе должен быть подстилающий слой и водонепроницаемое покрытие (бетон толщиной от 8 см). необходимо снять растительный грунт вокруг фундамента на глубину 10-15 см и заложить слой мягкой глины. Его нужно хорошо уплотнить.
Рекомендуется делать водоотводную канавку по краю отмостки. Дно и стенки такой канавки лучше выложить камнем и залить бетоном.
Работы имеют гарантийный период от 3 лет. Касательно материалов, гарантию дает производитель. Иногда она может быть бессрочной.
Узнать стоимость вашего проекта
Заказать звонок
Оставьте свои контактные данные и мы свяжемся с вами в ближайшее время
Спасибо!
Ваша заявка успешно отправлена.
Мы свяжемся с вами в ближайшее время.