Райт КВ-138





данные
- СтатусВ работе
- СтильРайт, Современный
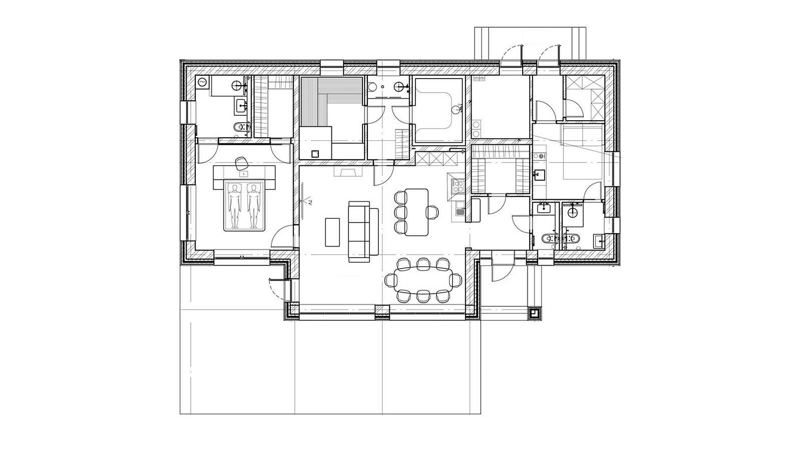
- Площадь 1 этажа138
- Количество спален2
- Количество санузлов2
- ПрочееРусская баня, терраса и хамам
- ФундаментМонолитная ж/б плита
- СтеныПоризованный кирпич
- ПерекрытиеМонолитное
- КровляВальмовая с покрытием из цементно-песчаной черепицы
- ФасадКомбинированный: облицовочный кирпич + декоративные панели
-
Стоимость
строительсваСтоимость строительсва
По запросу
Планировку
такой же
дом!
данные
- СтатусВ работе
- СтильРайт, Современный
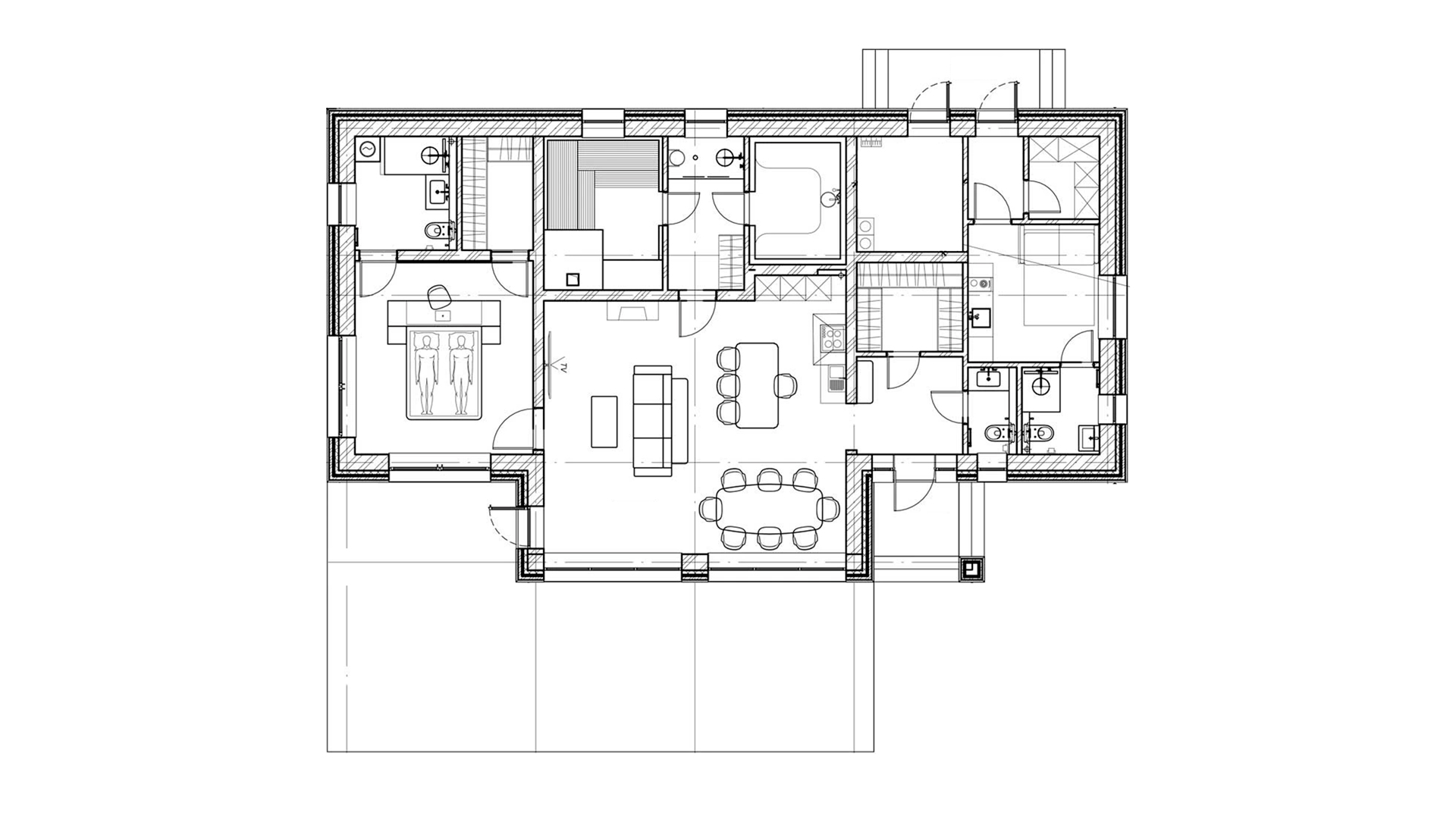
- Площадь 1 этажа138
- Количество спален2
- Количество санузлов2
- ПрочееРусская баня, терраса и хамам
- ФундаментМонолитная ж/б плита
- СтеныПоризованный кирпич
- ПерекрытиеМонолитное
- КровляВальмовая с покрытием из цементно-песчаной черепицы
- ФасадКомбинированный: облицовочный кирпич + декоративные панели
-
Стоимость
строительсваСтоимость строительсва
По запросу -
Стоимость
проектированияСтоимость проектирования
Вопросы и ответы
Важнейший этап строительства - облицовка фасада. Газобетон не слишком паропроницаем. Если в доме и на улице разные температуры, то может образоваться конденсат. Именно поэтому фасад отделывается паропроницаемыми изделиями.
Максимально доступный способ - покраска, но в таком случае стены должны быть ровные. Фасадная шпаклевка с добавлением специального вещества помогает снизить материальные затраты.
Самый удобный вариант - вентилируемый фасад из различных листовых материалов. Такой фасад не требует постоянно обновления. Иногда его украшают облицовочным кирпичом. Отделка сайдингом дорогая, но очень долговечная.
Стоимость формируется из:
- Параметров участка
- Материалов, которые используются при возведении
- Архитектурного стиля
- Сроков строительных работ
Узнать стоимость вашего проекта
Заказать звонок
Оставьте свои контактные данные и мы свяжемся с вами в ближайшее время
Спасибо!
Ваша заявка успешно отправлена.
Мы свяжемся с вами в ближайшее время.