Райт КП-1630








данные
- СтатусПроект
- СтильРайт, Плоские кровли, Современный
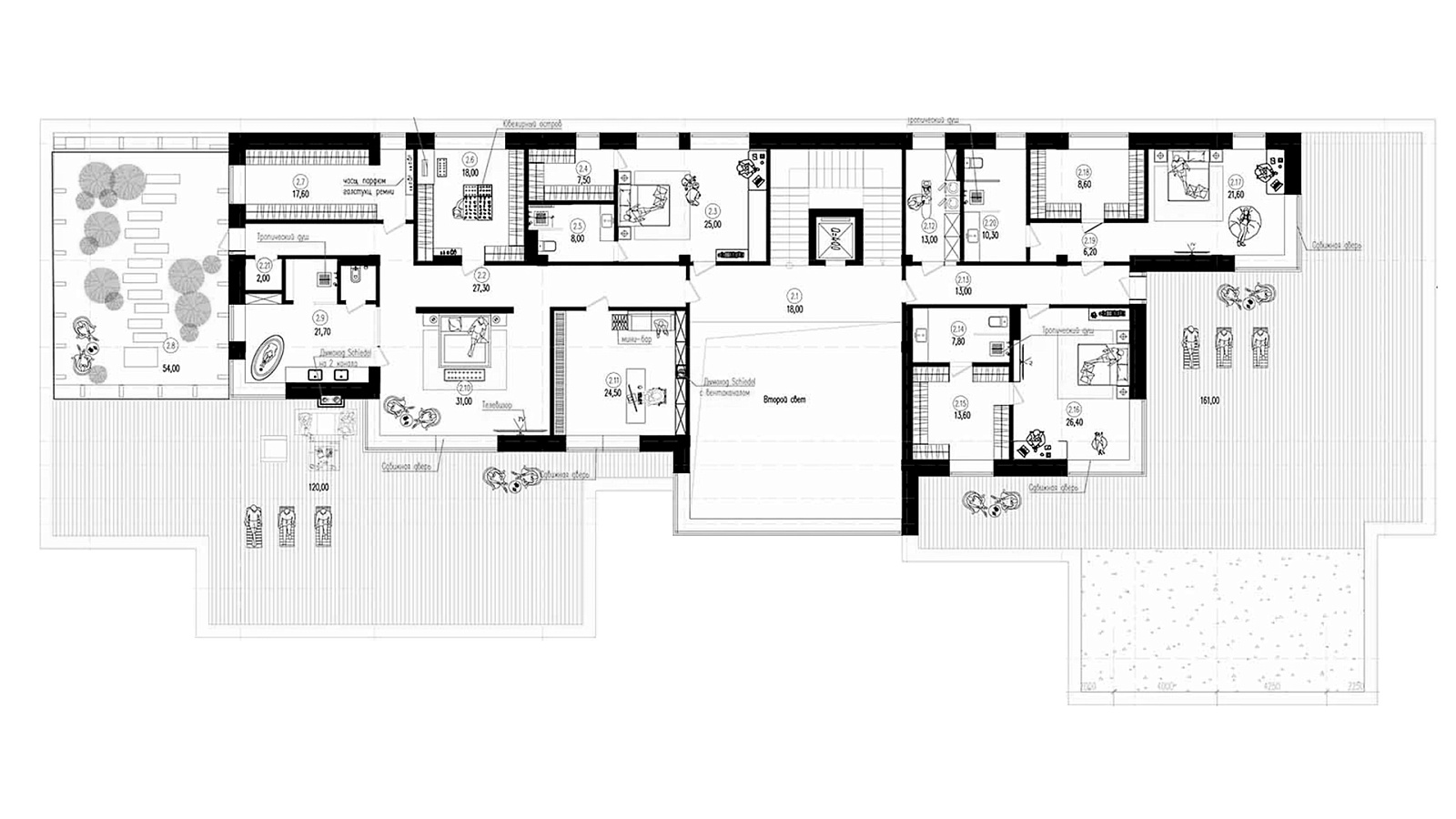
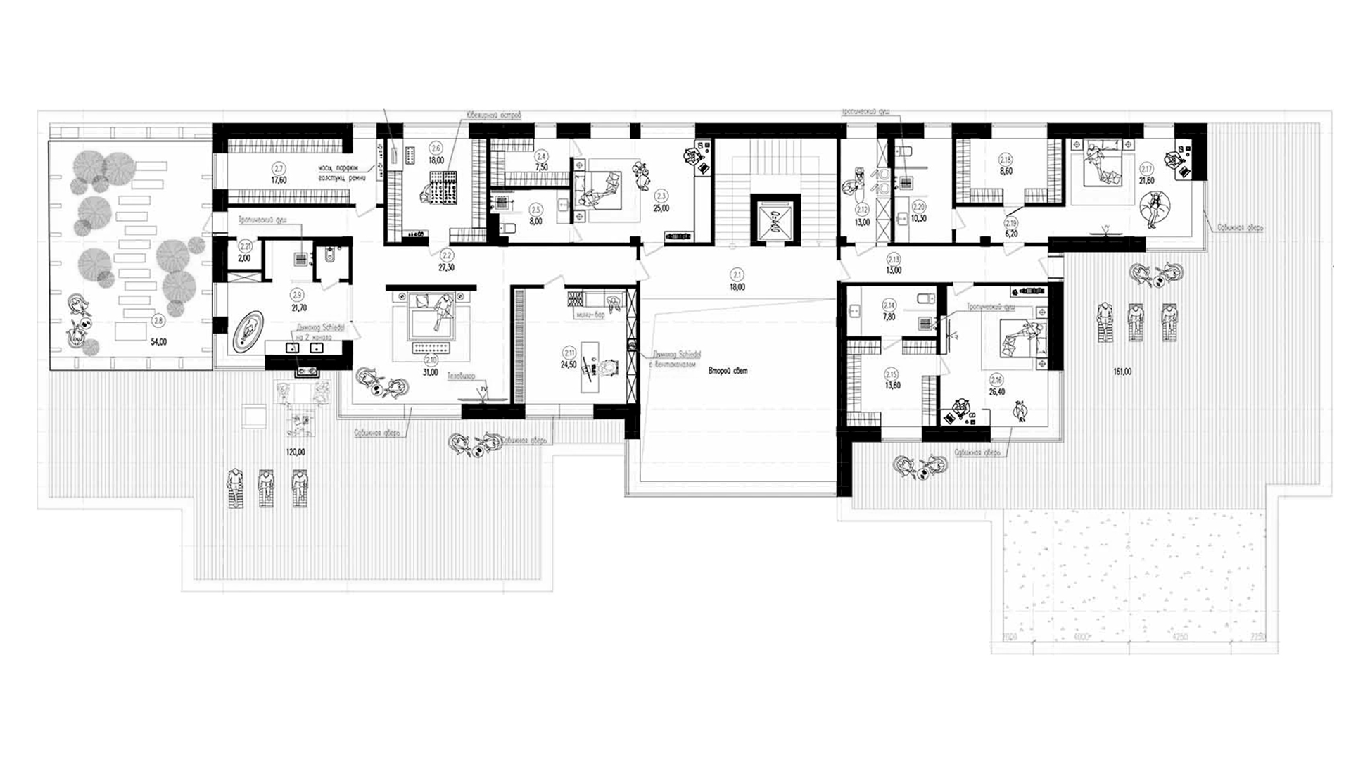
- Площадь 1 этажа561
- Площадь 2 этажа373
- Гараж/НавесДа
- Количество спален5
- Количество санузлов9
- Количество балконов2
- ПрочееТренажерный зал, игровая, стрелковый тир, бассейн, гараж
- ФундаментЦокольный этаж
- СтеныКирпич 2.1NF
- ПерекрытиеМонолитное
- КровляПлоская
- ФасадКомбинированный: облицовочный кирпич + планкен
-
Стоимость
строительсваСтоимость строительсва
По запросу
Планировку
такой же
дом!
данные
- СтатусПроект
- СтильРайт, Плоские кровли, Современный
- Площадь 1 этажа561
- Площадь 2 этажа373
- Гараж/НавесДа
- Количество спален5
- Количество санузлов9
- Количество балконов2
- ПрочееТренажерный зал, игровая, стрелковый тир, бассейн, гараж
- ФундаментЦокольный этаж
- СтеныКирпич 2.1NF
- ПерекрытиеМонолитное
- КровляПлоская
- ФасадКомбинированный: облицовочный кирпич + планкен
-
Стоимость
строительсваСтоимость строительсва
По запросу -
Стоимость
проектированияСтоимость проектирования
Вопросы и ответы
Она делается для отвода воды, стекающей с крыши, а также для защиты от поверхностных вод. Ширина отмостки – минимум 70 см. Кроме того, она должна быть на 20 см шире карниза, иначе стекающая с крыши вода размоет грунт и застоится под домом.
Если грунты просадочные, то ширина отмостки должна составлять как минимум 1 м, и она должна быть на 30 см шире фундаментных пазух.
Отмостка делается с уклоном 1:5. В ее составе должен быть подстилающий слой и водонепроницаемое покрытие (бетон толщиной от 8 см). необходимо снять растительный грунт вокруг фундамента на глубину 10-15 см и заложить слой мягкой глины. Его нужно хорошо уплотнить.
Рекомендуется делать водоотводную канавку по краю отмостки. Дно и стенки такой канавки лучше выложить камнем и залить бетоном.
Узнать стоимость вашего проекта
Заказать звонок
Оставьте свои контактные данные и мы свяжемся с вами в ближайшее время
Спасибо!
Ваша заявка успешно отправлена.
Мы свяжемся с вами в ближайшее время.