Райт КВ-323






проектные
данные
данные
- СтатусЗавершен
- СтильРайт
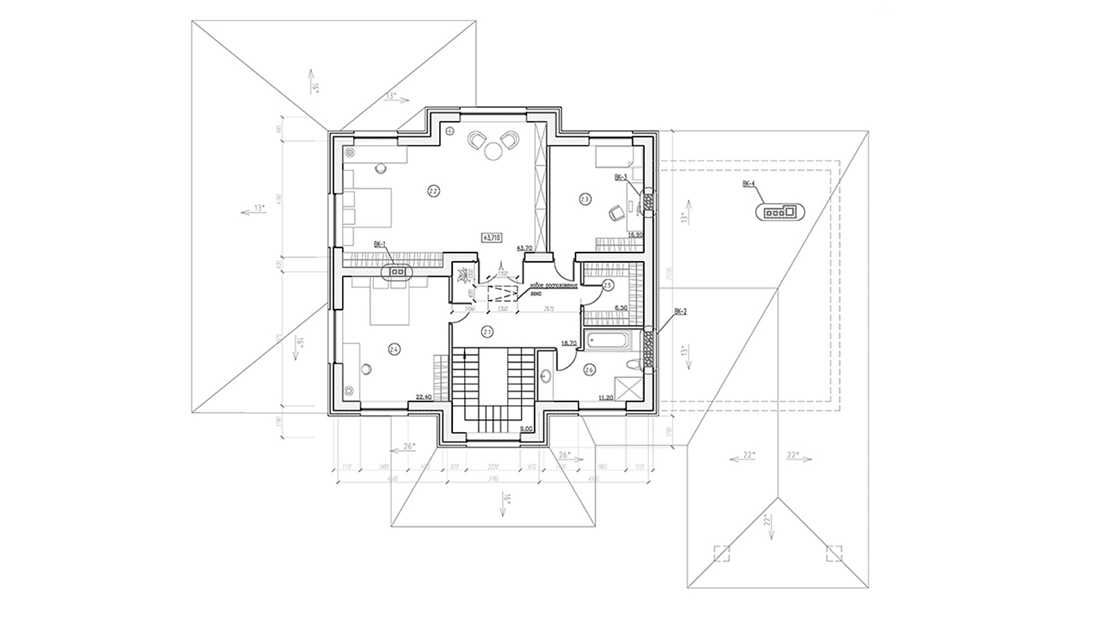
- Площадь 1 этажа209
- Площадь 2 этажа119
- Гараж/НавесДа
- Количество спален4
- Количество санузлов3
- ПрочееТерраса, сауна и гараж
- ФундаментМонолитная ж/б плита
- СтеныПоризованный кирпич 2.1NF
- ПерекрытиеМонолитное
- КровляВальмовая
- ФасадКомбинированный: кирпич ручной формовки + планкен + декоративные элементы
ОРИЕНТИРОВОЧНАЯ СТОИМОСТЬ
-
Стоимость
строительсваСтоимость строительсва
По запросу
Изменить
Планировку
Изменить
Планировку
Хочу себе
такой же
дом!
ОСТАВИТЬ ЗАЯВКУ
такой же
дом!
Рассчитайте стоимость строительства загородного дома
Рассчитайте стоимость проектирования загородного дома
проектные
данные
данные
- СтатусЗавершен
- СтильРайт
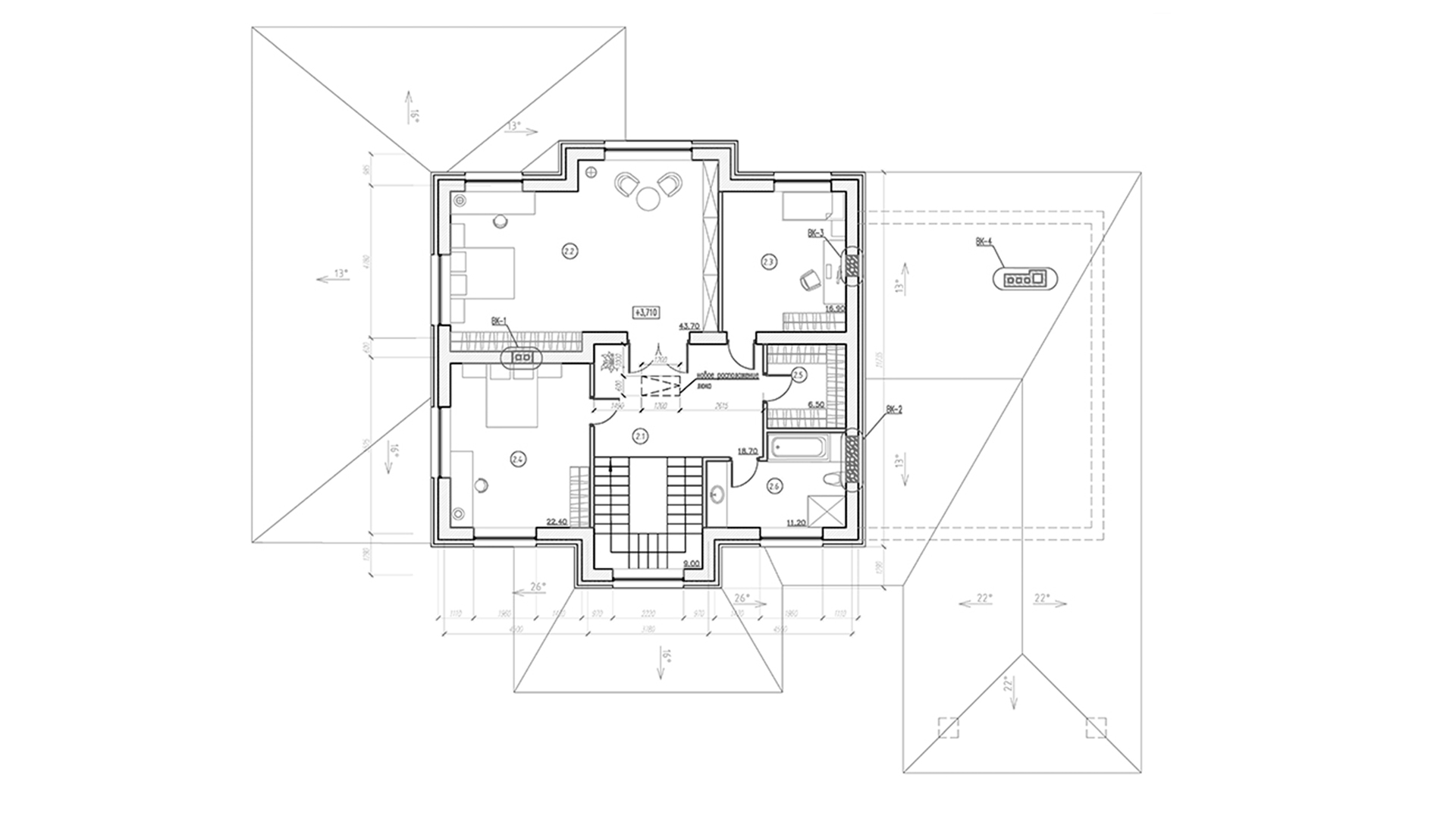
- Площадь 1 этажа209
- Площадь 2 этажа119
- Гараж/НавесДа
- Количество спален4
- Количество санузлов3
- ПрочееТерраса, сауна и гараж
- ФундаментМонолитная ж/б плита
- СтеныПоризованный кирпич 2.1NF
- ПерекрытиеМонолитное
- КровляВальмовая
- ФасадКомбинированный: кирпич ручной формовки + планкен + декоративные элементы
ОРИЕНТИРОВОЧНАЯ СТОИМОСТЬ
-
Стоимость
строительсваСтоимость строительсва
По запросу -
Стоимость
проектированияСтоимость проектирования
Заявка на расчет
Вопросы и ответы
Да, строительство ведется по индивидуальным проектам с учетом задач, участка и требований к дому.
Рекомендуем Вам связаться с нами и договориться о выезде на объект для более точной оценки Вашего случая. После осмотра участка наш специалист объективно расскажет Вам какой вариант будет наиболее выгодным.
Касательно проектирования, аванс в 70% вносится в течение 5 рабочих дней. После сдачи проекта заказчик оплачивает остаток. Касательно строительства, этапы в смете оплачиваются отдельно. Размер платежей может быть разный, но общая сумма не выходит за пределы сметы.
Похожие проекты
Узнать стоимость вашего проекта
×
Заказать звонок
Оставьте свои контактные данные и мы свяжемся с вами в ближайшее время
Спасибо!
Ваша заявка успешно отправлена.
Мы свяжемся с вами в ближайшее время.